Bedarfsabfrage zur Erschließung weiterer Wohnbaugebiete in Waldachtal
Die Gemeinde Waldachtal hat in den letzten Jahren die bauplanungsrechtlichen Voraussetzungen geschaffen um sowohl in Hörschweiler (Härte-Süd Erweiterung) als auch in Oberwaldach (Birkäcker Erweiterung) neue Wohnbaugebiete zu erschließen.
Ob und wann die Gebiete baulich erschlossen werden, hängt stark von der Nachfrage nach Bauplätzen ab. Die jeweiligen Bauplatzpreise werden kostendeckend erhoben und können erst zum Zeitpunkt der Kostenschätzung für die Baumaßnahme festgelegt werden.
Daher können Interessierte ab sofort an einer entsprechenden Abfrage.pdf teilnehmen.
Das Formular und auch Anfragen bekommen Sie auch gerne per Mail an postfach(@)waldachtal.de
Bebauungsplan „Birkäcker - Erweiterung” Waldachtal-Oberwaldach.pdf
Bebauungsplan „Härte Süd - Erweiterung” Waldachtal-Hörschweiler.pdf


Bauplätze im Schuppengebiet „Sägader” in Waldachtal-Salzstetten zu verkaufen!
Die Gemeinde Waldachtal hat in den letzten Jahren den Bebauungsplan für das Schuppengebiet Sägader in Waldachtal-Salzstetten erstellt. Dieser ist auf der Homepage der Gemeinde abrufbar unter: https://www.waldachtal.de/de/leben-in-der-gemeinde/informatives/bebauungsplaene/rechtsgueltige-bebauungsplaene/salzstetten
Der Gemeinderat hat am 23.09.2025 den Bauplatzpreis auf 75 €/m² festgelegt.
Sobald ausreichend verbindliche Zusagen für die Schuppenplätze vorliegen, wird die Gemeinde das Gebiet erschließen. Eine Bebauung der Platz kann erst nach erfolgter Erschließung voraussichtlich 2027 erfolgen.
Bewerbungen / Anfragen etc. gerne per Mail an postfach(@)waldachtal.de
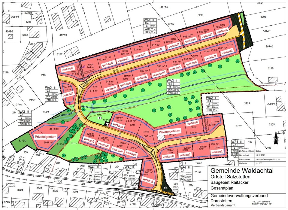
Bauplätze im Baugebiet Raitäcker in Waldachtal-Salzstetten
Im Baugebiet Raitäcker können noch folgende Bauplätze zum Preis von 180 €/m² (voll erschlossen) erworben werden:
Im Lukasgraben:
- Flst. 32158, 631 qm
- Flst. 37161, 615 qm
Raitäcker:
- Flst. 32134, 744 qm (aktuell reserviert)
- Flst. 32147, 588 qm (aktuell reserviert)
- Flst. 32151, 678 qm
- Flst. 32155, 511 qm
- Flst. 32156, 587 qm
Bei Interesse an einem der Bauplätze oder Fragen dazu reicht eine E-Mail an postfach(@)waldachtal.de oder ein Anruf unter 07443/9634-0.




Den gesamten Bebauungsplan mit den Bauvorschriften finden Sie auf der Homepage der Gemeinde Waldachtal unter www.waldachtal.de
Bei Interesse an einem der Bauplätze oder Fragen dazu reicht eine E-Mail an postfach(@)waldachtal.de oder ein Anruf unter 07443/9634-0.
Private Bauplätze in Waldachtal
In der Gemeinde Waldachtal gibt es einige freie Bauplätze in Privatbesitz. In der Regel stehen diese nicht zum Verkauf. Sollten Bauplätze verfügbar sein, sind diese hier aufgeführt.
Bei Interesse erfolgt die Kontaktdatenweitergabe über die Gemeindeverwaltung. Bei Interesse wenden Sie sich daher bitte per Mail an postfach(@)waldachtal.de oder telefonisch unter 07443 9634-10
von privat zu erwerben:
Gartengrundstück mit Geräteschuppen und Gewölbekeller sowie 2,5 Stellplätzen in Tumlingen, St-Hilariusweg, Flurstück Nr. 295 mit 900m²; bebaubar gemäß § 34 BauGB; 80 €/m²
Bei Interesse bitte Mail mit Kontaktdaten an: postfach@waldachtal.de







